Payoff
5 september 2023Een wijk die samen is gegroeid

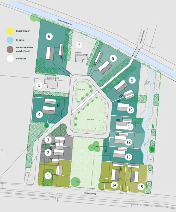
De Hiethaarshoek in Wesepe

Aan de rand van Wesepe ligt de Hiethaarshoek: een intieme, groene woonwijk die in de afgelopen jaren uitgroeide tot een plek waar vijftien unieke woningen één geheel vormen. Het eindresultaat oogt vanzelfsprekend. De weg ernaartoe was dat niet.

Moderne voorgevel met metselwerk en houten accenten aan de Hiethaarshoek in Wesepe.

Van plan naar plek

Al in 2007 werd een overeenkomst gesloten om op het voormalige industrieterrein aan de Boxbergerweg een kleine woonwijk te creëren. De eerste woningen kwamen er snel, maar daarna stokte het. Een groot deel van de kavels bleef onbebouwd.

Toen de ontwikkelaar, op advies van de gemeente Olst-Wijhe, medio 2017 aanklopte met de vraag om eens mee te denken, zijn we het gebied ingelopen. Samen met landschapsarchitect Harry ten Have probeerden we te doorgronden wat er mis ging. Onze conclusie: het lag niet aan de locatie. Die is prachtig. Het zat hem in de opzet.

De kavels waren weinig onderscheidend, de begroeiing schermde de wijk af van het omliggende landschap en de structuur deed sterk denken aan een vakantiepark. Daarbij waren de grondprijzen hoog én liet het bestemmingsplan weinig variatie toe.

Een open, leefbare wijk

Om de vakantiepark-opzet de doorbreken, is de indeling aangepast. Twee kavels zijn richting de Boxbergerweg gepositioneerd en de buurt heeft meer zicht naar de omgeving. Ook het bestemmingsplan werd gewijzigd, zodat er meer vrijheid kwam in bebouwingsmogelijkheden.

Flexibiliteit, variatie en een betere relatie met het landschap. Dat bleek precies de combinatie wat nodig was voor deze wijk.

Benieuwd hoe dat er in de praktijk uitziet? Hieronder zie je een aantal woningen die inmiddels aan de Hiethaarshoek zijn gebouwd.

Geïnspireerd geraakt?

Denk je nu: ‘Dit wil ik ook!’? Dat kan! We denken graag met je mee, zodat ook jij straks je woondroom werkelijkheid kan maken. Neem contact met ons op via de mail, telefoon, What’sApp: wat jij prettig vindt. Dan maken we samen jouw wens concreet.

Neem contact op

Ontwerpers Yellowlines